太励志了,这个单亲妈妈入住25㎡小窝,这些装修技巧我酸了!

文章图片

文章图片

文章图片

文章图片

文章图片

文章图片

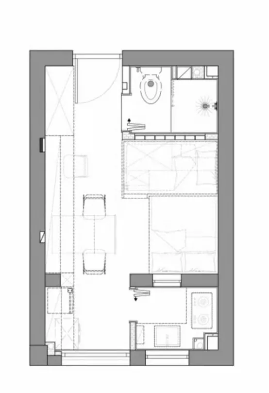
今天小编要给大家介绍的是一户25㎡的小窝 , 单亲妈妈带着孩子入住 , 虽然空间小 , 但是功能一样不少 , 彼此还有独立空间 。 究竟是怎么做到的?一起来看看吧!
客厅
一进门 , 便能感受到整个房间的大致布局 。 全屋以木质家具为主 , 光滑地板 , 仅留中间一条过道通往各个功能区 , 但是完全够用 。 靠门处顶天立地的衣柜 , 存放衣服、被子等大件物品 。 衣柜抬高设计 , 换鞋处便有了 。
接下来是整体书桌 。 中间镂空 , 柜子上方及桌面都可以做收纳 , 中间用来办公、孩子写作业等都是可以的 。 平时妈妈在一旁工作 , 孩子可以写作业 , 虽然空间小 , 但是也增加了母女之间的沟通 。
餐桌
书桌的一个抽屉是可活动的桌板 , 这样延伸了桌面可使用面积 。
卧室
上下床铺 , 孩子有什么事情都可以随时找妈妈 。 下床的床尾也是个隐形收纳 。 这样母亲也有自己独立的空间 , 放置自己的个人物品 。
床的一侧 , 做了侧边柜 。 可以放些孩子的衣服 。
阳台&洗衣区
工具收纳处
阳台做了落地窗 , 这样房间的采光度会好些 。 阳台成了洗衣区、工具收纳处 。 打造了收纳一体柜 , 洗衣机等做了隐藏设计 。 中间则放些微波炉、烧水壶等 , 分担了厨房的功能 。
厨房
厨房贴上了白色瓷砖 , 使整个空间变得有层次 , 更美观、大方 , 让人看上去更加干净、整洁 。 充分利用墙壁的作用 , 将工具等悬挂墙上 。
卫生间
【太励志了,这个单亲妈妈入住25㎡小窝,这些装修技巧我酸了!】卫生间马桶旁边设置了壁龛 , 这样可以放些卫生纸等小物品 。 另一侧墙壁靠近天花板 , 也设置了壁龛 , 这样有效避开了淋浴的范围 , 可以在洗澡时 , 放些换洗衣服 。
特别声明:本站内容均来自网友提供或互联网,仅供参考,请勿用于商业和其他非法用途。如果侵犯了您的权益请与我们联系,我们将在24小时内删除。
