农村小户型的别墅竟可以建得这么“精美”!造价仅花12万,太值了

文章图片

文章图片
很多朋友担心农村小面积的房子该怎么建?建出来的房子是不是很普通 , 在造型上做不了什么好看的设计 。 其实 , 大家大可不必担忧 , 随着建房技术的成熟以及大家的审美逐渐提高 , 即使小户型的房子同样可以建出好看的外观!今天就给大家分享一款开间进深7*9米的小户型农村自建房别墅!
【农村小户型的别墅竟可以建得这么“精美”!造价仅花12万,太值了】
宅基地的基本信息:
开间进深:7.76*9.76米
占地面积:74平方米
结构类型:砖混结构
参考造价:12万
室内布局的设计情况:
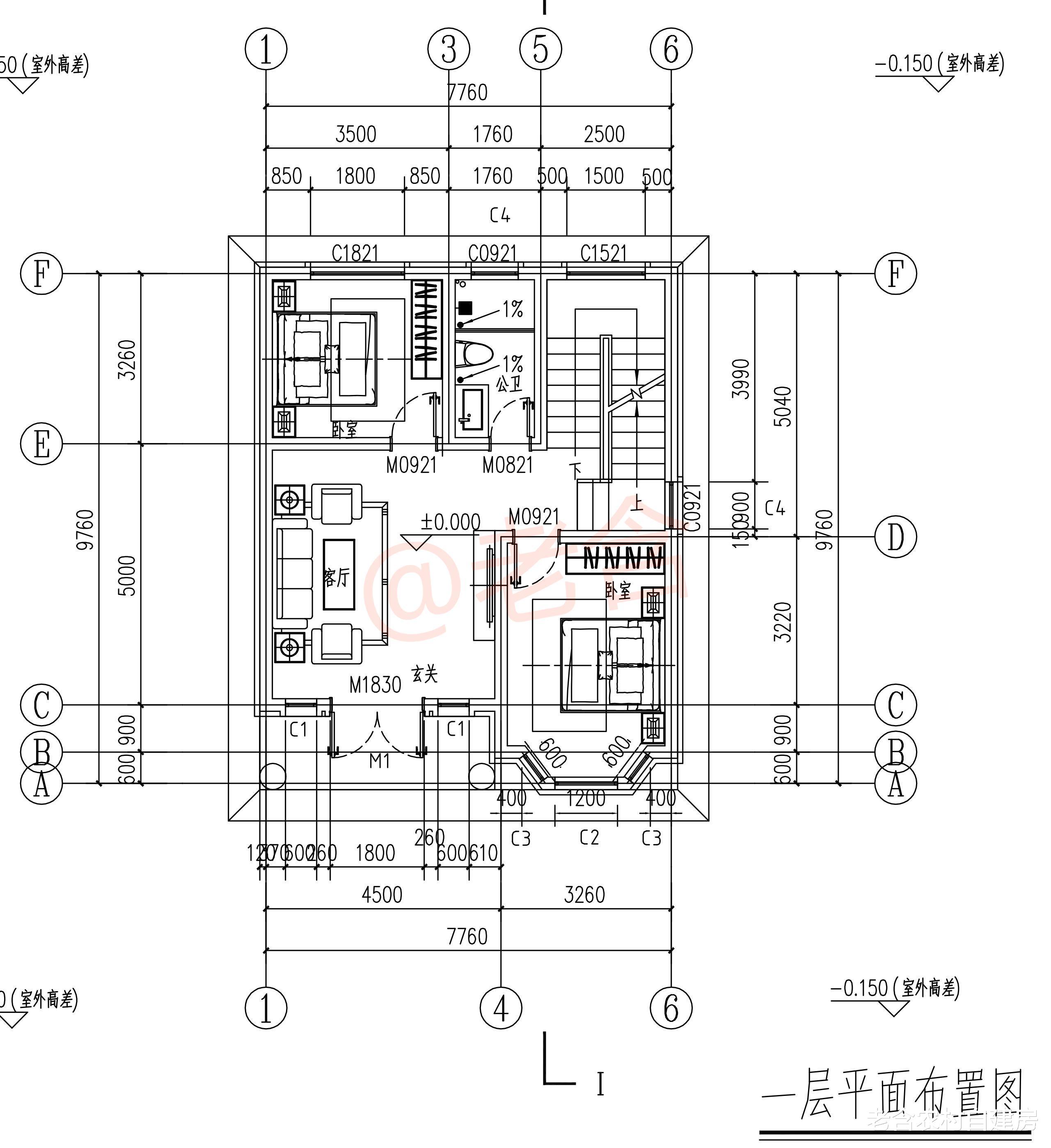
一层平面图:
首先入户则是玄关 , 再往里则是客厅的设计 , 一层设计了两间卧室 , 一个公卫 , 大家可能会纳闷厨房和餐厅在哪?单独设计了一个柴火房的!
二层平面图:
而二楼设计了三间卧室 , 主卧设计了衣帽间 。 二层设计了一个公卫 。 整体室内的布局合理利用了空间 , 将室内空间发挥到最大了!
虽然说是小户型的房子 , 麻雀虽小五脏俱全 , 如果家里也是小面积的朋友们可以参考这套别墅户型!
特别声明:本站内容均来自网友提供或互联网,仅供参考,请勿用于商业和其他非法用途。如果侵犯了您的权益请与我们联系,我们将在24小时内删除。
