设计无定式,只求适合自己 。本案介绍的是一套美式风格的装修,全屋用经典、温馨的语言,表达出最暖的效果,业主@蔡女士,是一位非常有品位之人,之前在美国生活过几年,对美式风有着情有独钟的喜爱 。
本案项目地址在成都市,一座著名的城市 。本案例,我们采取了白色为主体色的搭配,通过绿色和黑色来做点缀的处理,凸显出了一种别致的温暖效果,通过很好的布局设计,也让生活变得更加舒服 。

文章插图
设计简介:
装修风格:美式风格
实际面积:140平米
空间格局:四房两厅
设计师:千里莺设计
项目位置:四川省成都市
装修造价:预算价格20W
01原始结构图

文章插图
通过原始结构看上去房子面积很大,但是其实买房面积仅有150个平方,除开公摊后的实际面积也只有140个平方,拥有四房的格局,还拥有一个超大的阳台空间,虽然没有去过现场,但是通过业主的描述,那边的风景特别好,旁边没有任何的高层建筑遮挡视线,当时他们买这套房子的时候,就是看中了这个阳台 。
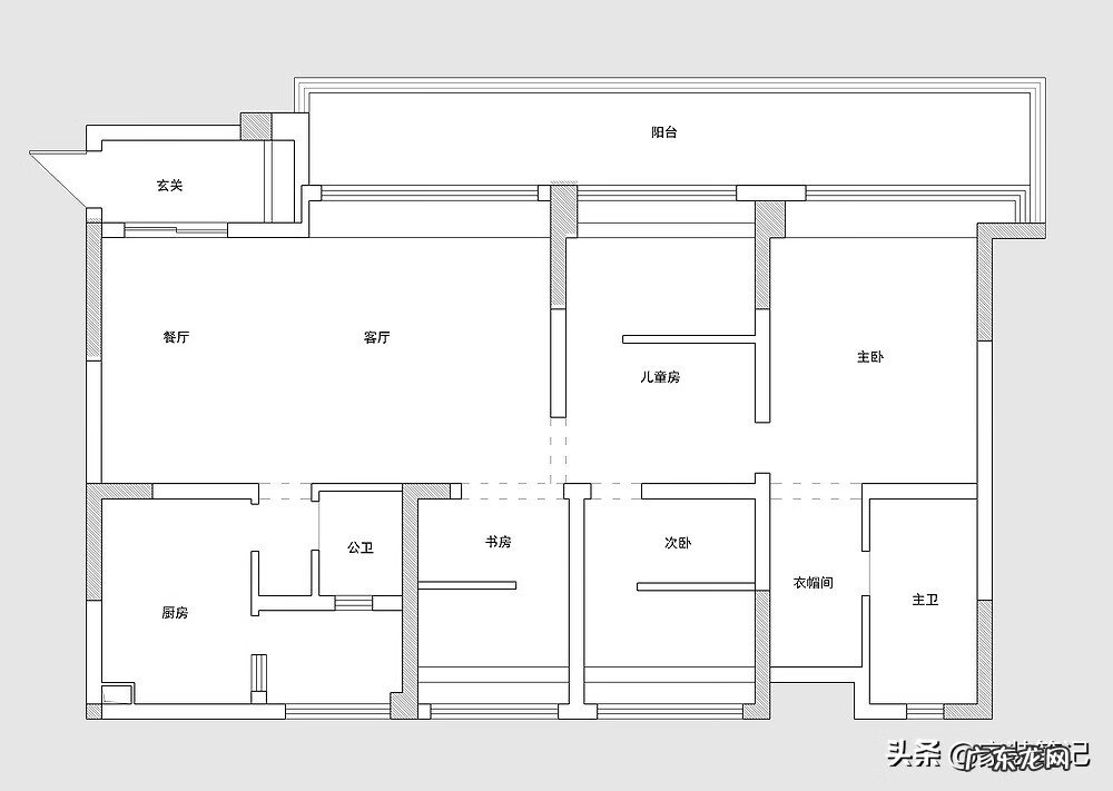
02平面布置图

文章插图
通过细致的平面布局之后,整个房子里面变得更宽敞、舒适了,每个空间每个功能都贴合他们一家人的居住需求:入户玄关取消和餐厅之间的推拉门,这样通透效果更好一点 。规划的餐厅面积并不大,所以靠酒柜摆放再合适不过了 。厨房进行了扩大,公卫门洞改变了方向 。儿童房也进行了面积扩大,其他几个卧室中规中矩的摆放 。休闲阳台保持不变,保证它的休闲功能 。
03玄关

文章插图

文章插图
玄关以实用为主,做了满墙到顶的衣柜,和阳台之间的窗户直接用柜子“封死”,因为玄关也不需要采光,有灯光的照明效果就已经很足够了,进门处设计了一小块儿地方作为挂衣区和换鞋区,并且摆放了一张小的换鞋凳 。顶面没有做任何的造型,只有筒灯来保证空间的照明效果 。
04客厅

文章插图

文章插图

文章插图
客厅采用了壁炉式的电视背景墙造型,整体选用黑色,显得很高级,壁炉能给寒冷的冬天,增加一丝丝暖,即使至少一个造型,也会带来这样的感知效果,因为“望梅止渴”这个词绝对不是空谈 。没有沙发背景墙,因为沙发的后就是整个餐厅空间,这样客餐厅连通在一起,让两个空间在视觉上形成了一个空间的既视感,空间感很强 。
05餐厅

文章插图

文章插图

文章插图
从玄关空间过来,首先就是餐厅空间 。餐厅设计在美感与功能上平衡得恰到好处 。餐厅做了一整面墙的酒柜,造型奇特有艺术感,而且收纳功能也是极强的 。餐厅的吊顶很简单,为了区分和客厅之间,围着周边做了一点点吊顶造型,同时也是为了嵌入射灯进去,因为射灯的灯光更加的柔和一些,餐桌的上方还有吊灯 。
- 电脑上看电视直播怎么看 windows10看电视直播的
- 长x宽÷多少是一亩地 测量土地亩数计算公式表
- 补单物流单号获取方式有哪些?要发什么快递?
- 台式机显示器总是突然黑屏 台式机显示器突然黑屏的原因和解决方法视频
- wish运费有什么标准?有哪些物流方式?
- 拼多多明星店铺轮播图样式是什么?如何使用?
- 贪吃鱼2 贪吃鱼2手机版下载
- 哪个款式用英语怎么说 款式英语怎么说
- qq邮箱的格式怎么填写?这才是正确的填写方式 qq邮箱填写格式举例图片
- 溺爱孩子的电视剧视频 溺爱孩子的危害和解决办法
特别声明:本站内容均来自网友提供或互联网,仅供参考,请勿用于商业和其他非法用途。如果侵犯了您的权益请与我们联系,我们将在24小时内删除。
