
文章图片

文章图片

文章图片

文章图片

文章图片

文章图片

文章图片

这是一对年轻夫妻的第一套房子 , 套内30㎡的开间 , 作为忙碌的城市上班族 , 拥有一个属于自己的小窝是许多人的梦想 , 房子虽然小 , 也足够承载两个年轻人的居住需求 。
屋龄:30年
面积:30㎡(套内)
户型:开间
装修风格:北欧
装修费用:17万
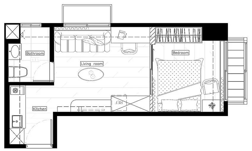
▲改造后平面布置图
这是一套屋龄30年的二手房 , 层高3.6米 。 原屋主在室内做了夹层 , 分出了小小的客厅及两个小卧室 。 设计师考量过现屋主的居住需求之后 , 建议拆除夹层 , 恢复原始层高 , 改为一室一厅的格局 。
【95后两口子住30㎡开间,坐拥3.6米层高却放弃夹层?】Before:原始的夹层设计遮蔽采光 , 楼梯占了一部分客厅空间 , 公共空间过于狭小 , 而且夹层部分的层高比较低 , 身高比较高的话无法站直 , 居住体验比较差 。
After:现屋主暂时没有小孩 , 绝大部分时间不会有客人留宿 , 没必要准备两个卧室 , 因此拆除夹层 , 改为一室一厅的格局 , 改善采光和通风 。
拆除夹层后 , 恢复了方正的客厅空间 , 与卧室之间用黑框玻璃门作为隔断 , 让客厅拥有了两面采光 , 在层高的加持下 , 显得更为明亮通透~
客厅的布置很简洁 , 靠窗放了一张灰色布艺沙发 , 用轻巧的小茶几和边几代替大茶几 , 可以随意移动 , 也可以作为小餐桌使用 , 活泼的亮蓝、浅咖与沙发灰搭配出经典的北欧风味 。
沙发一侧设置了小小的工作区 , 样式简洁的书桌、搁板及一墙之隔的卧室大衣柜都是定制的 , 保持了视觉上的统一性 。
沙发对面是电视墙和储物区 , 电视墙左侧做了一排浅色储物柜 , 冰箱也安置在此 , 解放了一部分厨房空间 。
电视墙面刷了柔和的浅蓝色 , 为了节省空间 , 选的是壁挂电视 , 用搁板代替了电视柜 , 墙面线条显得更为简洁 。
小小的厨房位于玄关位置 , 空间比较小 , 于是将玄关柜与橱柜合二为一 , 用柜面材质作为区分 。 屋主做饭比较少 , 一字型橱柜和单头灶已经够用 , 为了节省卫浴空间 , 将洗衣机安置在了橱柜区 。
为了留出宽裕的客厅公共空间 , 对卧室进行了压缩 , 仅留出必要的双人床+梳妆台的宽度 , 与客厅之间用黑框玻璃门作为隔断 , 用茶色玻璃柔和卧室的采光 。
特别声明:本站内容均来自网友提供或互联网,仅供参考,请勿用于商业和其他非法用途。如果侵犯了您的权益请与我们联系,我们将在24小时内删除。
