
文章图片

文章图片

文章图片

文章图片

文章图片

文章图片

文章图片

文章图片

文章图片

文章图片
业主家中有一个可爱的宝宝 , 想给孩子一个比较宽敞的成长空间 , 所以一下子买了两户然后合并成了一户 , 这样不仅空间面积比较宽敞 , 还能有更多的户外空间 , 让小孩子能够有更多的机会接近大自然 。 但是这次改造对设计师来说也是比较大的挑战 , 很多问题需要解决 , 不过好在最终设计师交上了一幅满意的答卷 。
两户变一户的大改造 , 原木风烘托出自然气息 , 谁看了都会爱上
房屋户型:四室
装修预算:50万
所在城市:四川 成都
设计师:李文伟
主要建材:木皮、大理石、壁纸、木地板、系统柜、灰玻、喷砂玻
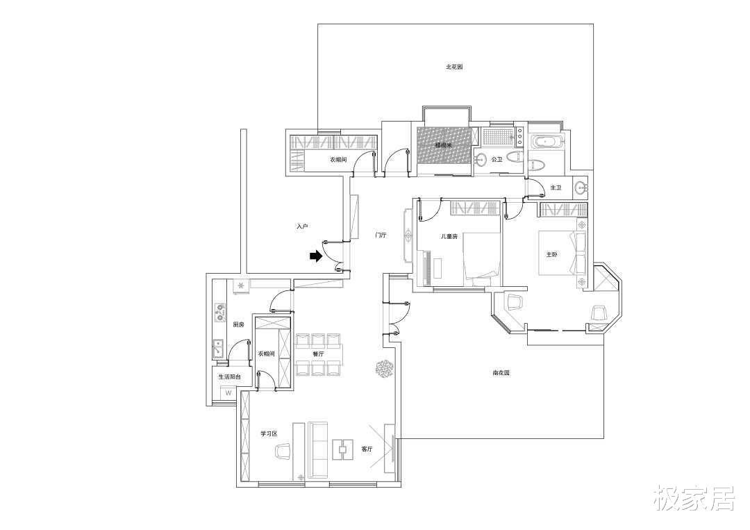
【户型图】
两个户型的结构都比较规整 , 但是在合并的时候还是有比较多的难点 , 设计师改造的时候集中生活区的设计 , 考虑到业主一家只有三口人 , 所以设计师保留了基本的生活区 , 还额外增加了休闲娱乐区 , 不仅一家人可以在这里放松休息 , 还可以招待朋友来家里做客 。 除此之外还增加了衣帽间 , 储物间 , 方便家里存储衣物 。 客餐厅也进行了较大幅度的改造 , 实用又不失美观 。
【玄关】
设计重点:清新绿植打造宽敞入户区
玄关是进入家门第一眼看到的地方 , 清新的绿植让人的心情也会不自觉地变好 。
【客厅】
设计重点:宽敞空间打造多功能布局
客厅改造之后还增加了一个读书区 , 利用沙发背景区域定制独立书桌和书柜 , 原木定制的家居更加贴近自然的清新感 , 没有粉刷任何的油漆 , 环保又充满质感 。 简约的三人沙发足够一家人使用 , 大面积的留白空间留给孩子自由地玩耍 。
开放式的大格局容纳了客厅 , 餐厅 , 读书区 , 没有任何隔断让视觉上更加宽敞明亮 。 白色的地板淡雅清透 , 铺上一张暖和的地毯 , 孩子也可以坐在上面玩耍旁边的大玻璃窗让阳光温暖的照射进来 , 整个空间都变成了一幅画一样浪漫又文艺 , 这样的生活难道不让人羡慕吗?
特别声明:本站内容均来自网友提供或互联网,仅供参考,请勿用于商业和其他非法用途。如果侵犯了您的权益请与我们联系,我们将在24小时内删除。
