拒绝“无效装修”,拆2面墙,5㎡厨房扩大18㎡,在这5处下了功夫

文章图片

文章图片

文章图片

文章图片

文章图片

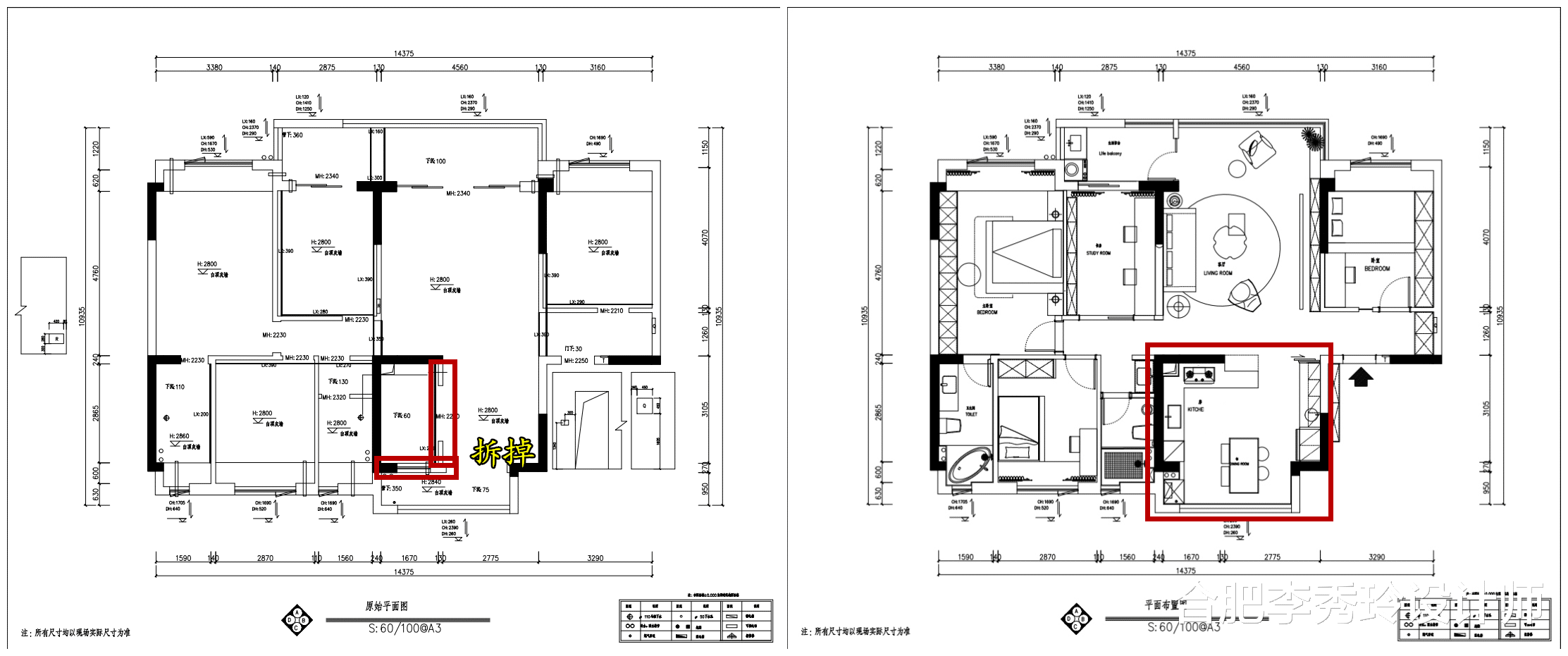
碰到厨房和餐厅阳台相连的户型并不少见 , 可坚持拒绝“无效装修” , 白得个小阳台不要白不要 , 业主“任性”拆掉两面墙 , 3个空间全部打通 , 5㎡的厨房扩大到18㎡ , 面积翻了3倍 , 楼上楼下同户型全都比不了!
毛坯房刚拿到手 , 业主最关心的就是厨房了 , 5㎡的空间又小又暗 , 甚至还没有外面的餐厅空间大 , 外面的小阳台设计不好也浪费了!
按照生活需求 , 将厨房餐厅阳台3个空间全打通 , 然后将阳台包进室内 , 大大增加餐厨的使用面积 , 同时厨房也拥有更好的采光度和通风效果 , 原本的独立式变成了现在的厨餐厅一体式设计 , 空间宽敞越用越顺手 , 更是在5处上下了功夫 , 每个都能直接抄作业!
①L型布局
L型橱柜长4米3 , 充分利用拐角空间 , 左侧水槽 , 电器区和备菜区 , 右侧是灶台以及延伸出的长97公分的小吧台 , 做饭时也能作为盛菜区 , 动线短而合理 , 专门根据业主身高量身定制了高低台设计 , 做饭舒适不累人 。
②集成灶代替灶台+油烟机
油烟机和灶台一体式设计更省空间 , 头顶也能腾出更多空间设计吊柜 , 吸油烟率高 , 功能也比较多 , 很适合一些小户型厨房 。
③阳台嵌入式储物柜
打通后的阳台还设计了一个嵌入式储物柜 , 整体感强 , 对于厨房空间来讲 , 储物空间不嫌多 , 何况还不占空间 。
③冰箱柜
冰箱旁边专门设计个高柜 , 这样让冰箱不会显得突兀 , 同时又可以增加更多的收纳空间 , 专门作为零食柜 , 置物架还充分利用了柜门空间 , 摆放整齐超治愈的 。
④落地窗
将之前的阳台封起来改成落地窗 , 两边再各预留个小窗户通风 , 高层的视野非常好 , 坐在这儿用餐 , 看天空看楼下都很不错 , 真的很让人羡慕了 。
【拒绝“无效装修”,拆2面墙,5㎡厨房扩大18㎡,在这5处下了功夫】
⑤厨餐厅玻璃推拉门
你以为厨房打通后就变成开放式空间了吗?No , 厨餐厅跟客厅之间必须有玻璃门 , 解决了大家都担心的油烟问题 , 通透感跟开放式厨房比并不差!
阳台跟厨餐厅相连 , 家里有需要的话 , 可以作为纯粹的生活阳台 , 可像这位业主家 , 家里已经有独立的洗衣房 , 那么这个阳台也不能白白浪费 , 包进室内才是正确的打开方式 , 毕竟谁能拒绝一个明亮又宽敞的厨餐厅呢!
特别声明:本站内容均来自网友提供或互联网,仅供参考,请勿用于商业和其他非法用途。如果侵犯了您的权益请与我们联系,我们将在24小时内删除。
