看了这位老师的家后,才知道什么叫高雅,一进门仿佛世界都安静了

文章图片

文章图片

文章图片

文章图片

文章图片

文章图片

文章图片

文章图片

文章图片

文章图片

文章图片

文章图片
说起老师的家 , 相信很多人首先想到的就是拥挤 。 因为由于职业的关系 , 哪怕家里的面积再大 , 储物空间再多 , 也会被各种书籍给堆满 , 所以整个空间都会显得十分杂乱 。 可事实上 , 老师的家也可以做到高雅、整洁的 。
像本期带来的这套案例 , 虽然屋主夫妇都是大学老师 , 但极简式的布局 , 以及合理的藏露收纳 , 却让空间看起来十分的干净、利落 。 同时 , 当空间以日式原木风为基调后 , 还处处都透着一抹高雅与安宁 , 仿佛在一进门后 , 整个空间都安静了 。
一层原始结构图
本案坐标南京 , 是一套复式户型结构 , 面积150㎡ , 屋主一家三口 。 对于新家的期待 , 其实也很简单 , 就是要在实用耐看的基础上 , 让生活使用无障碍 , 并喜欢静谧、温润的居住氛围 。
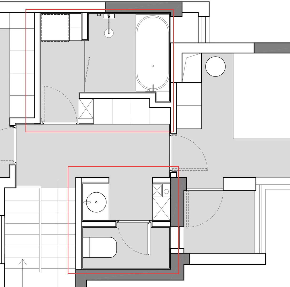
而从一层的户型结构来看 , 虽说整体也比较工整 , 但楼梯间与卫生间却严重缺少采光 , 所以也做了一些针对性的处理 。
一层平面方案图
考虑到一层为主要活动区 , 所以布局这块也尽量以通透为主 , 具体如下 。
1、卫生间仅保留独立的马桶间 , 利用墙体空间解决冰箱的空间需求 。
2、将卫生间小窗户拆掉 , 并配置一个台盆柜 , 让卫生间与玄关都能使用 。
3、厨房采用开放式设计 , 与客餐厅实现完全贯通 。
4、书房采用玻璃隔断 , 进一步提高空间的通透性 。
二层原始结构图
二层与一层的格局基本一样 , 再结合家里只有三口人居住 , 所以整体是以两居室的功能来规划的 。
特别声明:本站内容均来自网友提供或互联网,仅供参考,请勿用于商业和其他非法用途。如果侵犯了您的权益请与我们联系,我们将在24小时内删除。
