面宽\t27.2米 进深 32.2米 河北唐山王家中式三合院

文章图片

文章图片

文章图片

文章图片

文章图片

文章图片

文章图片
\t\t\t\t\t\t
- 尺寸
- 面宽\t\t\t\t\t\t\t\t\t 27.2米 进深\t\t\t\t\t\t\t\t\t 32.2米
- 建筑面积
- 717.0㎡
- 土建造价
- 150.2万
- 项目概况
【面宽\t27.2米 进深 32.2米 河北唐山王家中式三合院】△总平面示意图
基地情况:
东:邻家住宅
西:邻家住宅
南:自家宅院
北:村内道路
项目简介:
业主在项目前期表示喜欢传统中式风格 , 除了对房间数量有硬性要求外 , 希望将餐厨、车库功能置于附属空间 。 设计师根据场地情况 , 及业主的需求和喜好 , 将项目形式确定为单层中式三合院 。
平面布局
户型概况:
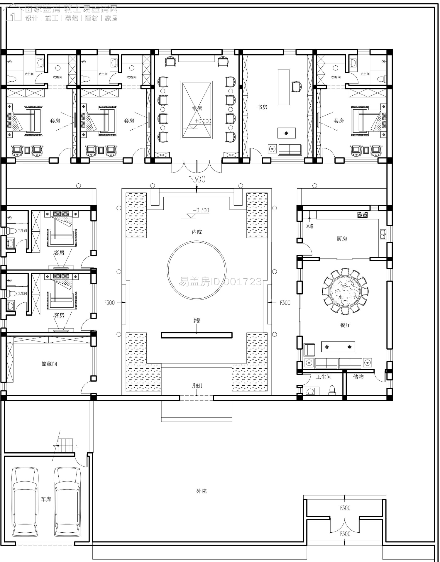
1层 / 5室 6卫 1厨 1堂屋 2储藏 3衣帽 1书房 1休闲区 1露台 1车库
△一层平面图
设计师在整层共设5间大套房 , 满足业主家对于居住空间的刚需 。 建筑整体采用三合院布局形式 , 主房通过中部堂屋划分南、北区域;东侧厢房设置餐厨、储物和公卫;辅房增设车库功能 , 有效提高了日常使用的便捷性 。
造型设计
△南侧效果图
△东南侧效果图
建筑设计为三合院形式 , 整体为传统中式风格 , 立面采用真石漆和青砖贴片 , 搭配窗洞、雕花、檐口等中式元素构件 , 形成极具特色的造型 。
△西北侧效果图
△鸟瞰图
外立面造型采用左右对称布局 , 在视觉上便给人以整齐划一的美感;三合院的歇山式坡屋顶 , 搭配辅房的平屋顶 , 在鸟瞰角度突显建筑主体 。
△院门效果图
△庭院效果图
△庭院效果图
入院处的影壁后面设置了假山和风水树 , 中部规划出水景区域 , 丰富了庭院整体的休闲功能 。
△东立面图
△西立面图
△南立面图
△北立面图
特别声明:本站内容均来自网友提供或互联网,仅供参考,请勿用于商业和其他非法用途。如果侵犯了您的权益请与我们联系,我们将在24小时内删除。
