110㎡两室变三室,清爽简约宅

文章图片

文章图片

文章图片

文章图片

文章图片

文章图片

文章图片

文章图片

文章图片
户型不大 , 但是高层光线非常好 , 不需要太大改造 , 格局基本满足需求 , 业主喜欢比较清爽的风格;满足未来一家三口居住即可 。
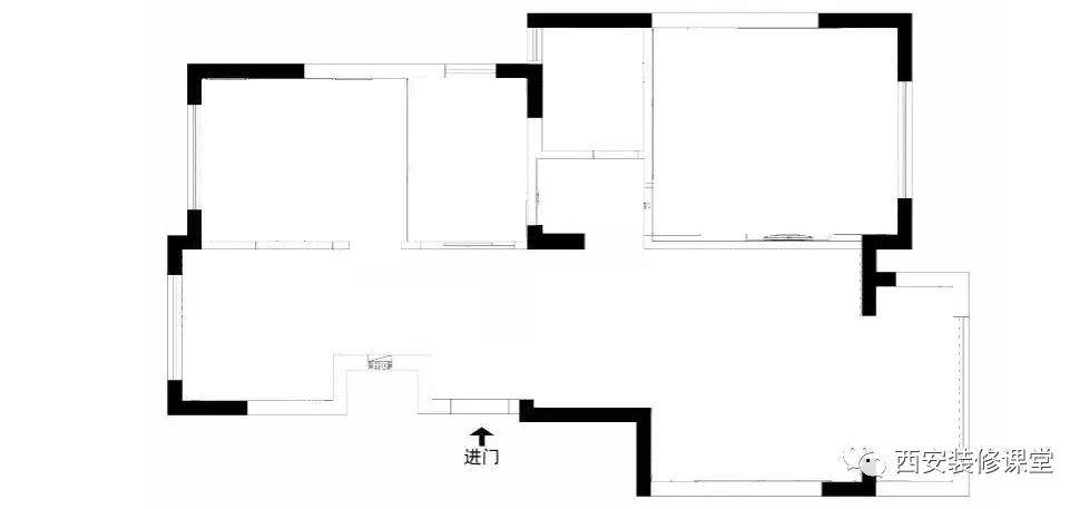
▲原始格局 , 入户进来左右分别是客餐厅 , 而且直对就是厨房 , 只有一个卫生间 , 还好原始格局本身就是干湿分离;两间卧室满足刚需;但是未来三口之家两室显得有些紧张 , 最好能有一间暂时的书房以后可以临时住人的地方
▲设计后的布局 , 原有北边的餐厅空间新分割出来一个书房空间 , 平时可以作为书房使用 , 必要时可以作为临时卧室 , 这样基本实现三室功能;利用进门右手的空间布局餐桌 , 利用空间 , 同时离厨房也能更近一点 , 动线更合理;两个卧室满足基本功能即可 , 厨房实现了U型布局 , 同时满足冰箱的放置
▲入户进来右手的全景空间 , 利用过道一边布局餐桌 , 目前就两人 , 所以靠墙放置 , 留出更多动线空间;直对刚好布局斗柜隔板 , 作为厨房门口的水吧台 , 同时兼顾进门的玄关背景
▲清爽的蓝灰色墙面 , 瓷砖通铺与阳台打通 , 拓展视觉以及光线;咖色布艺沙发 , 一把墨绿复古的单椅搭配 , 轻巧双圆几满足功能空间更灵活;条纹素雅地毯提升视觉层次;客厅与阳台一边成品的吧台布局 , 满足年轻人的小情调【110㎡两室变三室,清爽简约宅】
▲轻巧咖色沙发布局 , 背景清新挂画与蓝灰色乳胶漆非常清新 , 侧墙拐角成品的收纳格子 , 充当书柜和展示柜使用
▲这个角度可以看到进门左手的鞋柜 , 虽小但是满足使用 , 旁边是原来的餐厅空间 , 玻璃移门分割出来一个书房空间 , 通透玻璃不影响采光 , 里头拉上帘子随时可以保证隐私
▲电视墙非常简单 , 蓝灰色变色以后 , 原木成品电视柜摆放即可 , 利用上方吊顶隐藏投影幕布 , 随时可以满足看大片的需求
▲这个角度可以看到原有餐厅改作的书房空间 , 玻璃移门分割 , 不影响采光和视觉的通透;厨房门口放置斗柜兼顾水吧台和玄关柜
▲客厅生活阳台空间刚好满足成品洗衣柜 , 上头铁艺的置物满足基本功能
特别声明:本站内容均来自网友提供或互联网,仅供参考,请勿用于商业和其他非法用途。如果侵犯了您的权益请与我们联系,我们将在24小时内删除。
