
文章图片

文章图片

文章图片

文章图片

文章图片

文章图片

文章图片

文章图片

文章图片

文章图片

文章图片

女业主是一个非常精致的上海姑娘 , 平时比较喜欢收藏各种漂亮的鞋子 , 对美的要求非常高 。 男主人则比较喜欢收藏钢笔 , 更侧重于家居的舒适感 。 除此之外家里还有一只6岁的宠物狗狗 , 它也需要自己的独立空间 。 设计师和业主进行了多番交流 , 最终敲定了整体风格 , 不论是业主还是家里的宠物狗狗都非常满意 。
老上海也可以同样年轻 , 在家中也能感受咖啡厅的氛围 , 清透又时尚
房屋户型:两室
装修预算:50万
所在城市:上海
设计师:李文伟
主要建材:木皮、大理石、壁纸、木地板、系统柜、灰玻、喷砂玻
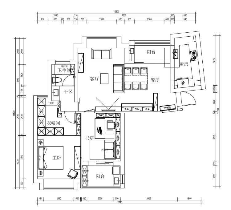
【户型图】
房屋的户型比较传统 , 因为日常家里只有两个人居住 , 所以设计师简化了不必要的空间 , 增设了比较实用的衣帽间 。 优化了空间动线 , 让室内的采光得到保证 。 同时结合房屋内的走向 , 最大程度的打造出一个个性美观的二人世界 。
【玄关】
设计重点:利用视觉上的错位感打造别致空间
玄关改造之后用玻璃钢窗代替水泥墙做隔断 , 不仅可以明确的划分空间 , 还能让视野上比较宽敞清透 , 没有之前的压抑堵塞的感觉 。 外观像是一扇门 , 干练又时尚 。
【客厅】
设计重点:精致软装营造空间格调
客厅在打通了之前的隔断以后 , 面积得到了扩大 , 而且采光也得到了保证 。 需要分割的地方也是采用玻璃钢窗 , 这样不会阻挡空间和视线 。 在客厅就可以看到阳台的绿植 , 靠窗的位置还设计了吧台桌 , 平时两个人可以在这里喝咖啡赏风景 。
女业主平时也比较喜欢去咖啡厅 , 所以想在家中也打造出咖啡厅的格调 。 利用客厅的角落 , 搭配复古风格的斗柜 , 各种精致的工艺品 , 把咖啡厅的优雅自由的空间氛围完美的展现出来 。
特别声明:本站内容均来自网友提供或互联网,仅供参考,请勿用于商业和其他非法用途。如果侵犯了您的权益请与我们联系,我们将在24小时内删除。
