楼盘测评:望京里的三国杀
----楼盘测评:望京里的三国杀//----
----楼盘测评:望京里的三国杀//----
----楼盘测评:望京里的三国杀//----
----楼盘测评:望京里的三国杀//----
----楼盘测评:望京里的三国杀//----
----楼盘测评:望京里的三国杀//----
----楼盘测评:望京里的三国杀//----
"multi_version":false
文丨子木团队
前段时间 , 我写过两篇文章 , 《北京限竞房购房报告》和《500万在京购房策略》 , 想让大家对北京房地产格局 , 有一个宏观层面的了解 。
然而从后台留言来看 , 显然是低估了 。
因为大家早已步入了「中阶」领域 , 对购房最大的疑问 , 早已不是地段方向上 , 而是聚焦在具体楼盘上 。 例如:
“子木老师 , 你认为XX楼盘怎么样?“
“XX和XX比 , 哪个更好一些?”
“我就这点儿钱 , 买XX的性价比如何?”
当然 , 涉及到楼盘的评测 , 其优劣点 , 性价比 , 升值潜力等 , 必须要经过线下实地踩盘才能得知 。
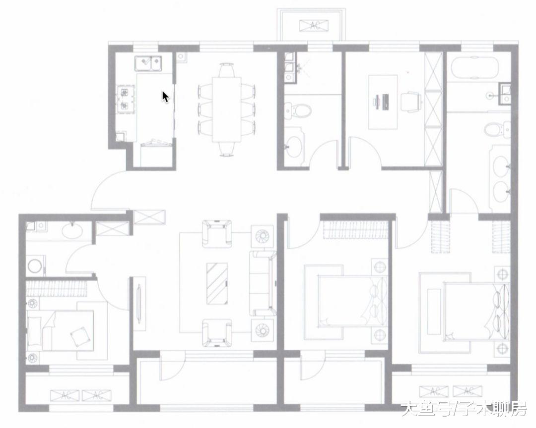
所以这次我选了北京朝阳望京三家即将开盘的项目(丽都悦府 , 华樾北京和中海望京府)做分析标的 , 结合实操经验 , 分享在下面的踩盘日记中 。
1
准备工作
当然踩盘也是一门艺术 , 你得会看、会问、会谈判 , 还得将《演员的自我修养》 , 了然于胸 。 这里具体不展开 , 可以看我之前的文章《售楼处的猫腻》 。 小白客户可以做到以下几点准备 。
1.时间 。 这次选择周一下午出来踩盘 , 有一个好处:容易根据楼盘内的人流判断其销售预期 。 因为周末是热点时间段 , 人多难以分辨 , 有的新开楼盘还会花钱雇演员 。 第二个是 , 周一售楼处经纪人时间充裕 , 不偏客 , 能实实在在回答你的问题 。
特别声明:本站内容均来自网友提供或互联网,仅供参考,请勿用于商业和其他非法用途。如果侵犯了您的权益请与我们联系,我们将在24小时内删除。
