90平现代简约风三居室,遒劲而富于节奏感
【90平现代简约风三居室,遒劲而富于节奏感】

文章图片

文章图片

现代简约风格柔美精致 , 是很多家庭装修首选的风格之一 。 喜欢接受新事物的朋友在装修的时候多会选择现代简约风格装修 , 现代、简洁、时尚 , 融入了自己的风格 , 但是越是新潮的东西就越难设计把握住整体的效果 。 现代装修风格给人的感觉是遒劲而富于节奏感
根据客厅平面的尺寸、形状及自己的生活方式确定家具摆放形式及活动线 。 面积较大的房间应该设计成对称式无论地面、吊顶、墙面造型和家具摆放都呈现出明显的对称格局进而达到一种稳重、大方、平和的基调 。
现代、简洁、时尚 , 融入了自己的风格之客厅 , 沙发和背景很好地融合在一起 , 一眼上去很清爽
为什么现在卧室不吊顶了?现在很多人在装修卧室的时候都简单处理 , 一方面节省了预算 , 一方面减少了卫生死角 , 卧室回归本来的
现代、简洁、时尚 , 融入了自己的风格之卧室
厨房在装修的时候 , 一般都是要按照厨房格局 , 先布置好水电线路 。 做到备料、清洗、切菜、炒菜、放菜、出菜的合理性 。 会产生高温、油烟的烤箱 , 炉具应置于同一区 , 冰箱和水槽则置于另一轴线上 , 同时依照从食材拿取、清洗、调理到烹调的动线来做安排 。
现代、简洁、时尚 , 融入了自己的风格之厨房
玄关配色应与室内环境相呼应 , 在保持全屋色调统一的前提下 , 玄关区域用色不应超过三种 。 在考虑玄关配色的时候也不能忽视灯光 , 玄关尽量选择色温较低的暖光 , 还能营造出温馨惬意的氛围感 。
现代、简洁、时尚 , 融入了自己的风格之餐厅
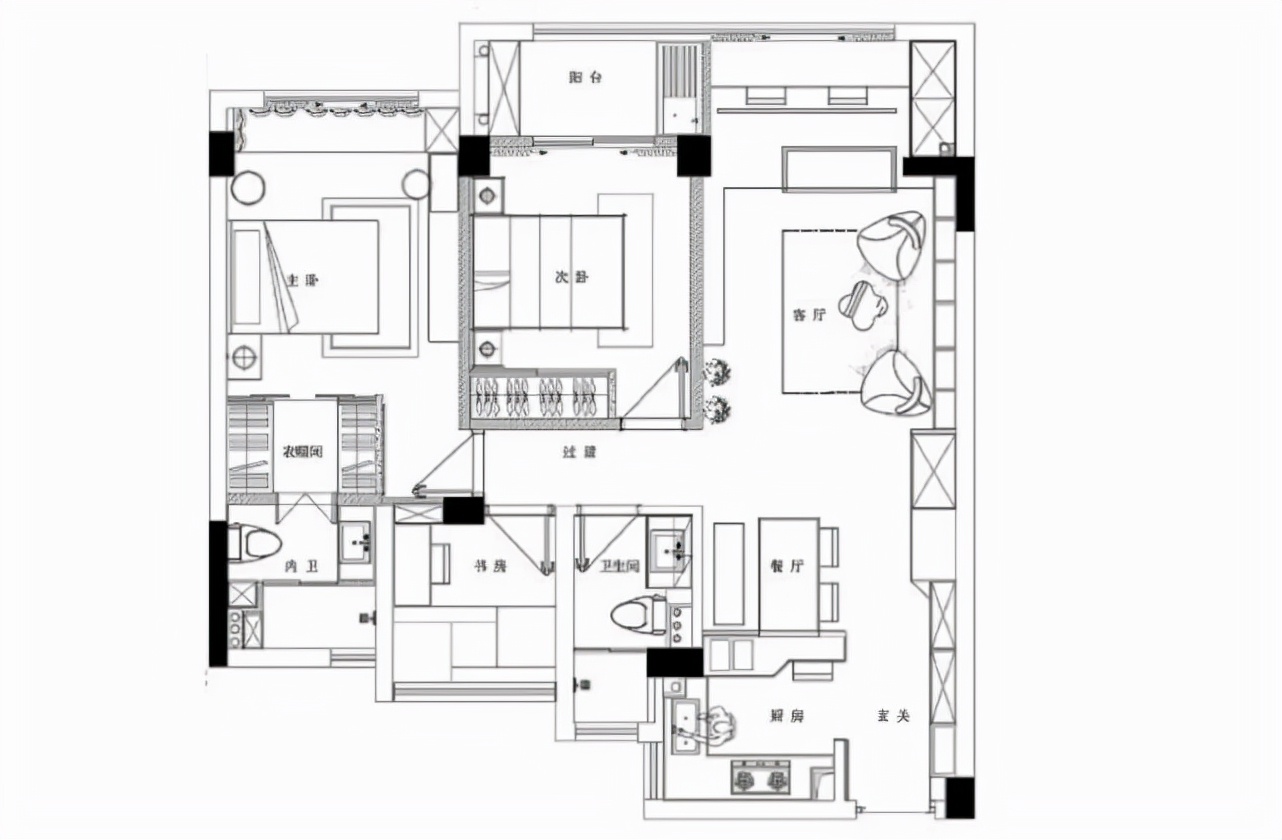
户型图布局比较合理
特别声明:本站内容均来自网友提供或互联网,仅供参考,请勿用于商业和其他非法用途。如果侵犯了您的权益请与我们联系,我们将在24小时内删除。
