不愧是文艺女青年的家!布局打破常规,色彩古典雅致,太抢眼了

文章图片

文章图片

文章图片

文章图片

文章图片

文章图片

文章图片

文章图片
文艺青年的家会是怎样?相信在很多人的第一印象中 , 应该都是那种极其小资、精致 , 且不失艺术气息 。 事实上 , 相较于一般人 , 他们也的确很会装扮自己的新家 , 且具有天马行空般的想象力 。
本期带来的这套案例 , 屋主就是一个十足的文艺女青年 , 不仅喜欢手工、音乐 , 平时还喜欢烹饪一些美食 。 因此 , 在空间设计中 , 非常希望将文艺与色彩融入到空间中 , 从而让艺术可以真正落地 , 实现美学享受 。
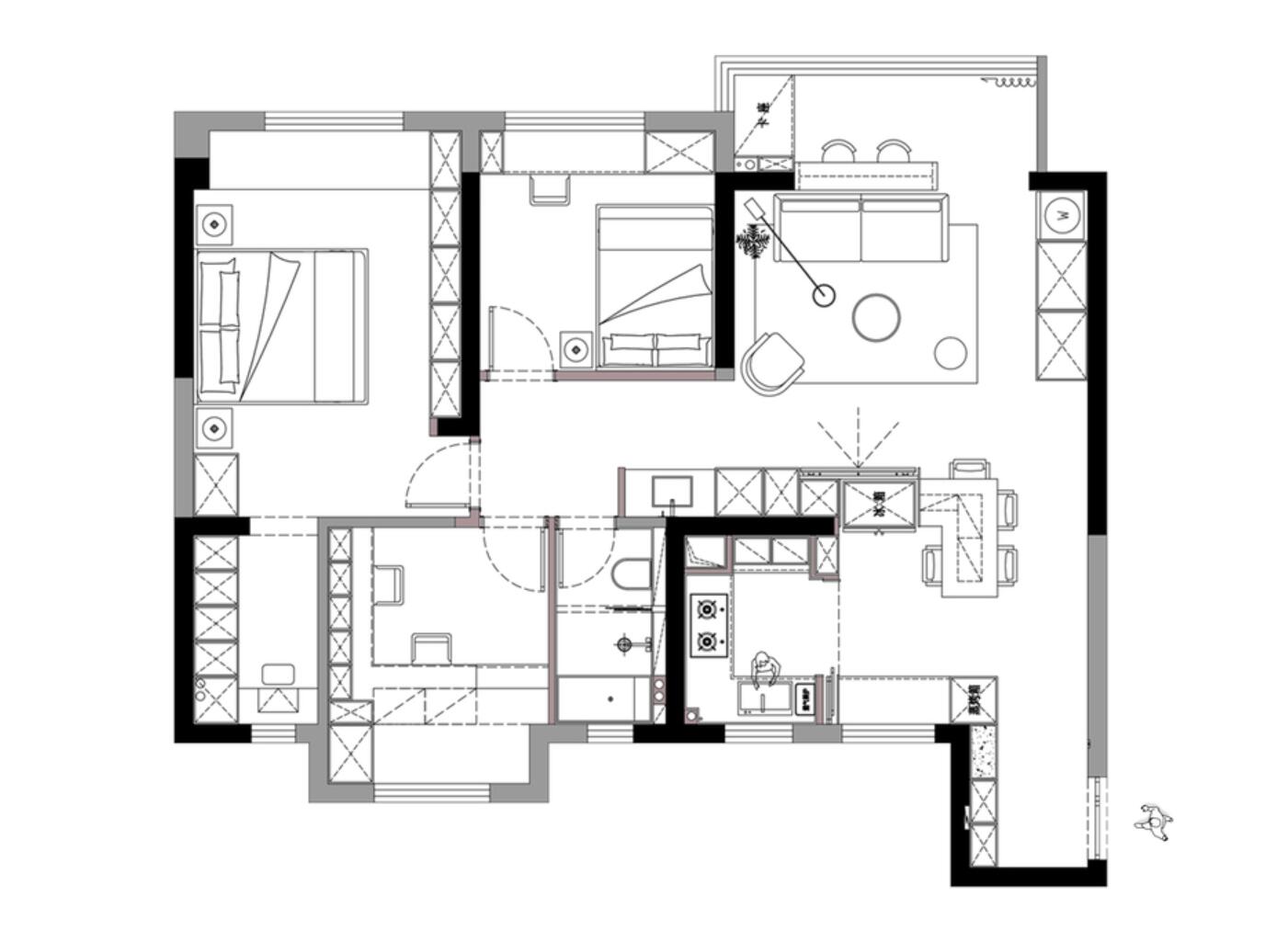
平面户型图
本案坐标芜湖 , 建面116㎡ , 常规的三室两厅两卫格局 , 屋主是一对充满想象力的90后夫妇 。 原户型虽然很常见 , 但空间改造这块 , 却算是打破了常规 , 具体有下面这几点 。
1、餐厨区采用开放式设计 , 并在餐厅延伸出了一块西厨区 , 满足女主烹饪的爱好 。
2、次卧做空间缩小处理 , 并借用过道的空间设计餐桌、电视墙、卫生间干区 , 让空间面积得到充分利用 。
3、沙发采用横向的方式摆放 , 并在阳台增加吧台 , 延伸出一块休闲区 。
4、主卫以衣帽间定位 , 弥补家里的收纳能力 。
玄关
一进门就有一块小玄关区 , 当餐厨区采用一体化的结构来设计后 , 鞋柜直接与西厨区的柜子连接成一个整体 , 既让空间做到了工整 , 也最大化提高了空间的利用率 。
色彩搭配这块 , 则是墨绿与白色做了经典的拼色设计、这样既为空间营造出了一种优雅、复古的气息 , 也可以起到平衡空间基调的作用 , 让视觉表现不会太过压抑 。
通过玄关第一视角 , 右侧墙面利用石膏线条做矩形造型设计 , 除了呼应空间主题之外 , 搭配上古朴的木地板、复古的装饰画后 , 也凸显出了一抹轻奢、精致的基调 。
餐厨区
原餐厅面积其实十分有限 , 所以直接打破了传统的布局方式 , 将餐厅以西厨区来定位 , 既满足了女主烹饪美食的爱好 , 也解决了对开门冰箱、厨房小电器的收纳需求 。 同时 , 还拥有了舒适的动线体验 。
厨房内部则是以U形的结构来设计的 , 并选择了低饱和度的色调来搭配 , 从而让空间看起来更加清爽、整洁 。 而窄边框移门的存在 , 也彻底起到了隔绝油烟的作用 。
定制的转角餐桌 , 最多可以满足四个人共同用餐 , 餐桌底部设计储物柜 , 再次弥补了空间的收纳能力 。
特别声明:本站内容均来自网友提供或互联网,仅供参考,请勿用于商业和其他非法用途。如果侵犯了您的权益请与我们联系,我们将在24小时内删除。
